一(yi)、管(guan)廊布(bu)置(zhi)的一(yi)般要(yao)求


  ①. 管廊應(ying)處于(yu)易與各類主(zhu)要(yao)設備聯系(xi)的(de)(de)位置上。要(yao)考慮能(neng)使多數管線(xian)(xian)布置合(he)理,少繞行(xing),以(yi)減少管線(xian)(xian)長度(du)。典型的(de)(de)位置是(shi)在(zai)兩排(pai)設備的(de)(de)中間或一排(pai)設備的(de)(de)旁(pang)側。


  ②. 布置管廊要(yao)綜合考慮道路、消防(fang)的(de)需要(yao),以及地(di)下管道與(yu)電纜布置和(he)臨近建、構筑(zhu)物等情況,并避開大、中型設備的(de)檢修場地(di)。


  ③. 管廊(lang)上(shang)部可以(yi)布置(zhi)空冷(leng)器(qi)、小(xiao)型設(she)備(bei)、操作閥組平(ping)臺、儀(yi)表和電氣(qi)電纜槽等,下部可以(yi)布置(zhi)泵等設(she)備(bei)。


  ④. 管廊上設有(you)的閥(fa)門需要操作或檢修(xiu)時,應設置人行走道或局部操作平臺(tai)。



二、管廊軸向柱距的設計


  ①. 管(guan)廊軸向柱距由敷設在(zai)其上(shang)的管(guan)道因垂直載荷所產生的彎曲應力和撓度決定的。


  ②. 根據管(guan)(guan)段不(bu)應在輕(qing)微外界(jie)擾力作用(yong)下發(fa)生(sheng)明顯(xian)振動(dong)的要求,規定裝(zhuang)置內(nei)管(guan)(guan)道的固有振動(dong)頻率(lv)宜不(bu)低于4次/s,裝(zhuang)置外管(guan)(guan)段的自由(you)振動(dong)頻率(lv)不(bu)低于2.55次/s,由(you)此(ci)規定得出兩支架間(jian)管(guan)(guan)道允許撓(nao)度f,裝(zhuang)置內(nei)為15mm,裝(zhuang)置外為38mm。


  ③. 管廊軸向柱距通常(chang)為6~9m,如中、小直徑管道較多時,可在(zai)支柱之間設置副梁以滿足管道跨距,見圖(tu)3.5。


  ④. 管廊(lang)支柱的(de)間距,宜(yi)與設備框架(jia)支柱的(de)間距取得一(yi)致,以便管道(dao)通過。


5.jpg



三、管廊橫斷面寬度的設計(ji)


  ①. 管(guan)(guan)(guan)(guan)廊的(de)寬(kuan)度主(zhu)要由管(guan)(guan)(guan)(guan)道(dao)的(de)數量和管(guan)(guan)(guan)(guan)徑(jing)的(de)大小確定(ding)。并考慮一(yi)定(ding)的(de)預(yu)(yu)留(liu)(liu)寬(kuan)度,新(xin)設計的(de)管(guan)(guan)(guan)(guan)廊一(yi)般留(liu)(liu)有擴建預(yu)(yu)留(liu)(liu)量[全廠性管(guan)(guan)(guan)(guan)廊或(huo)管(guan)(guan)(guan)(guan)墩上(包(bao)括穿越涵(han)洞)應留(liu)(liu)有10%~30%的(de)裕(yu)量,裝置主(zhu)管(guan)(guan)(guan)(guan)廊宜(yi)留(liu)(liu)有10%~20%的(de)裕(yu)量]。同時要考慮管(guan)(guan)(guan)(guan)廊下設備(bei)和通道(dao)以及管(guan)(guan)(guan)(guan)廊上空冷設備(bei)等(deng)結構的(de)影響。如(ru)果要求(qiu)敷設儀(yi)表引線槽架(jia)和電(dian)力電(dian)纜時,還應考慮它們所需的(de)寬(kuan)度。


  ②. 管(guan)(guan)廊上布置空(kong)冷器(qi)時,管(guan)(guan)廊橫斷面支柱跨距最好與(yu)空(kong)冷器(qi)的間距尺寸相同(tong),以使管(guan)(guan)廊立柱與(yu)空(kong)冷器(qi)支柱中(zhong)心線(xian)對(dui)齊(qi)。


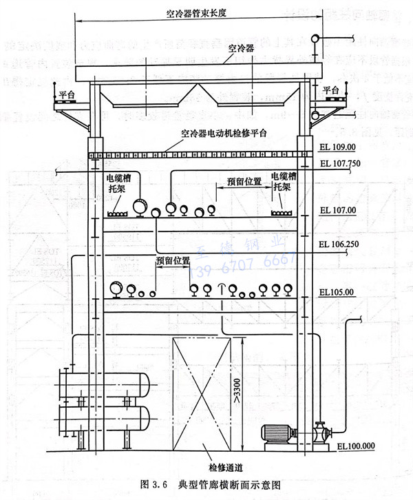
  ③. 管(guan)(guan)廊下(xia)(xia)布(bu)置(zhi)泵時,應考(kao)慮泵的(de)布(bu)置(zhi)及其(qi)所(suo)需(xu)操作(zuo)和(he)檢修通道(dao)的(de)寬(kuan)度,如果(guo)泵的(de)驅動機(ji)用電纜地下(xia)(xia)敷設時,還應考(kao)慮電纜溝(gou)所(suo)需(xu)寬(kuan)度。此(ci)外,還要考(kao)慮泵用冷(leng)卻水(shui)管(guan)(guan)道(dao)和(he)排水(shui)管(guan)(guan)道(dao)的(de)干管(guan)(guan)所(suo)需(xu)寬(kuan)度。不過,電纜溝(gou)和(he)排水(shui)管(guan)(guan)道(dao)可以(yi)布(bu)置(zhi)在通道(dao)的(de)下(xia)(xia)面(mian),見圖3.6。


  ④. 由于整個管廊的(de)(de)管道布置密度(du)并不相同,通常在首尾段的(de)(de)管道數(shu)量較少(shao)。因此(ci),在必要時可以減少(shao)首尾段的(de)(de)寬度(du)或層數(shu)。


6.jpg



四、管廊層高的設計


①. 接近地面(mian)第一層管廊的(de)最小凈高的(de)設計


  a. 在(zai)道(dao)路上空橫穿時,按中國(guo)國(guo)內(nei)消防(fang)車、運輸車等一般(ban)高度標(biao)準(zhun),SH規(gui)范的管(guan)廊高度布置(zhi)標(biao)準(zhun)要求如下。


   ·裝(zhuang)置內管廊距地面凈(jing)空高(gao)(gao)度(du)(du):行(xing)車道(dao)、消(xiao)防道(dao)和檢修通道(dao)最小凈(jing)高(gao)(gao)4.5m,泵(beng)區檢修通道(dao)最小凈(jing)高(gao)(gao)3m,操作通道(dao)最小凈(jing)高(gao)(gao)2.2m(此高(gao)(gao)度(du)(du)是(shi)飲用了歐美國(guo)家人的(de)高(gao)(gao)度(du)(du)加安全(quan)帽(mao)的(de)高(gao)(gao)度(du)(du)算出來的(de),日(ri)本操作通道(dao)通常為2.0m)。


   ·裝置外(wai)跨(kua)越(yue)廠區的全廠管廊據地面(mian)凈空高度(du):跨(kua)越(yue)鐵(tie)路最(zui)小凈高5.5m,跨(kua)越(yue)廠內道路最(zui)小凈高5m。


  以上僅是一般情況下管廊(lang)(lang)的(de)高(gao)度(du)要(yao)(yao)(yao)求,管廊(lang)(lang)的(de)設計高(gao)度(du)還(huan)要(yao)(yao)(yao)結合項(xiang)目實(shi)際(ji)情況考(kao)慮全廠(chang)(chang)的(de)大型設備(bei)的(de)運(yun)輸需(xu)要(yao)(yao)(yao)的(de)高(gao)度(du),再最終(zhong)確(que)定管廊(lang)(lang)的(de)布置高(gao)度(du)。例如,某新建(jian)工廠(chang)(chang),根據大件運(yun)輸的(de)要(yao)(yao)(yao)求,跨越(yue)全廠(chang)(chang)主干道的(de)管廊(lang)(lang),距離地面的(de)最小凈空高(gao)度(du)為10m。


  國(guo)外某(mou)工程(cheng)項目,需(xu)根據所在國(guo)家的規范要求設計管廊高(gao)度(du)。例如,蘇聯(俄(e)羅(luo)斯)的消防(fang)車(che)一(yi)般較高(gao),俄(e)羅(luo)斯全廠管廊距離路(lu)面最小凈高(gao)為5.5m,比中(zhong)國(guo)高(gao)0.5m。


  b. 當管廊有桁架時(shi)要按桁架底高計算。


  c. 為有效(xiao)地利用管廊空(kong)間,多在管廊下布置泵。考慮到泵的操作和維護,宜有4.0m凈(jing)空(kong)高度。


 ②. 管(guan)廊上管(guan)道與分區設備相接時,一般(ban)應比管(guan)廊的(de)底層(ceng)管(guan)道標高低或(huo)高600~1000mm。管(guan)廊下(xia)布置管(guan)殼式換熱設備時,根據設備實際(ji)高度需要增加管(guan)廊下(xia)的(de)凈空(kong)。


 ③. 管廊外設(she)備的(de)管道進(jin)入管廊所必(bi)需的(de)高度。若為大型裝置,其設(she)備和管徑較大,為防止管道出現(xian)不必(bi)要的(de)袋形,管廊最下(xia)一層橫(heng)梁底標高應(ying)低于設(she)備管口500~750mm。


 ④. 若管(guan)廊(lang)附近有換熱框(kuang)(kuang)架(jia),換熱設備的(de)下部管(guan)道(dao)要從(cong)它的(de)框(kuang)(kuang)架(jia)平(ping)臺接往管(guan)廊(lang),此(ci)時至少要保證管(guan)廊(lang)的(de)下層橫梁低于換熱框(kuang)(kuang)架(jia)第一層平(ping)臺。


 ⑤. 當管(guan)(guan)(guan)廊改變方向或兩管(guan)(guan)(guan)廊成直角(jiao)相(xiang)交時,管(guan)(guan)(guan)廊宜(yi)錯層(ceng)(ceng)布置,錯層(ceng)(ceng)的(de)高(gao)(gao)差宜(yi)為750~1000mm。當高(gao)(gao)差為750mm時,DN250以下的(de)管(guan)(guan)(guan)子用兩個直角(jiao)彎(wan)頭(tou)和(he)短管(guan)(guan)(guan)相(xiang)接;大于(yu)DN250的(de)管(guan)(guan)(guan)子用一個45°彎(wan)頭(tou)、一個90°彎(wan)頭(tou)相(xiang)接。對于(yu)大型裝(zhuang)置也(ye)可采(cai)用1000mm以上的(de)高(gao)(gao)差。


 ⑥. 在確(que)定管(guan)(guan)廊高度(du)(du)時(shi),要考慮到管(guan)(guan)廊橫梁(liang)和縱(zong)梁(liang)的(de)結(jie)構(gou)斷面和形式,務必使梁(liang)底或桁架底的(de)高度(du)(du)滿(man)足(zu)上(shang)述確(que)定管(guan)(guan)廊高度(du)(du)的(de)要求。對于(yu)(yu)雙層管(guan)(guan)廊,上(shang)下層間距(ju)一般(ban)為1.5~2.0m,對于(yu)(yu)大型裝置上(shang)下層間距(ju)可為2.5~3.0m,主(zhu)要取決(jue)于(yu)(yu)管(guan)(guan)廊上(shang)最大口徑的(de)管(guan)(guan)道。


 ⑦. 裝置之間的管廊(lang)高度取決于管廊(lang)地(di)區(qu)(qu)的具體情況,如沿(yan)工(gong)廠(chang)邊緣或罐區(qu)(qu),不會(hui)影響廠(chang)區(qu)(qu)交通(tong)和(he)擴建的地(di)段,從經濟性和(he)檢修方(fang)便(bian)考(kao)慮,可用管墩敷設(she),離地(di)面高300~500mm,即可滿足要求。


五、管墩的(de)設計(ji)


 圖3.7 常壓罐區的管墩設計(ji)


  ①. 管墩的間距(ju)按管徑最小的管道允許跨距(ju)進行設置。


  ②. 管墩頂距(ju)地面一般不(bu)宜小于(yu)0.4m,見圖(tu)3.7。


7.jpg


六、混凝土管廊(管墩)梁頂(ding)預埋(mai)件


  混凝(ning)土管廊(管墩)的梁頂應(ying)設通(tong)長預埋件,預埋件的形式應(ying)符合國家(jia)標(biao)準SH/T 3055的要求。一般橫梁上應(ying)埋放一根圓鋼或鋼板,以減少管道與(yu)橫梁間的摩擦(ca)力。


  例如,某項(xiang)目在(zai)混凝土(tu)管(guan)廊(lang)(管(guan)墩)梁(liang)頂上設(she)置(zhi)預(yu)(yu)(yu)埋(mai)件時(shi),混凝土(tu)管(guan)廊(lang)(管(guan)墩)梁(liang)頂一般按圖3.8(a)、(b)所(suo)示(shi)設(she)通長預(yu)(yu)(yu)埋(mai)件,當(dang)管(guan)廊(lang)需要(yao)設(she)導向架(jia)(jia)時(shi),預(yu)(yu)(yu)埋(mai)件采(cai)用圖3.8(b)所(suo)示(shi)的形式(shi);當(dang)管(guan)廊(lang)需要(yao)設(she)固定架(jia)(jia)時(shi),預(yu)(yu)(yu)埋(mai)件采(cai)用圖3.8(c)所(suo)示(shi)的形式(shi)。


8.jpg


七、管廊上儀表電(dian)氣電(dian)纜(lan)槽(cao)架及巡檢梯子平臺(tai)的布置(zhi)


  ①. 如果(guo)是中小型(xing)工程項目,儀表電氣電纜槽(cao)架寬度較(jiao)小,布置在(zai)管(guan)廊(lang)內或者掛在(zai)管(guan)廊(lang)外(wai)側面均可(ke),并保持管(guan)道與(yu)槽(cao)架之間(jian)的間(jian)距。


  ②. 大中型(xing)項目,儀表(biao)電(dian)(dian)氣電(dian)(dian)纜(lan)槽架(jia)較寬(kuan),可能需要(yao)占一層(ceng)(ceng)管廊的(de)空(kong)間。電(dian)(dian)纜(lan)槽架(jia)和(he)儀表(biao)槽架(jia)宜(yi)布(bu)置在上(shang)層(ceng)(ceng),電(dian)(dian)纜(lan)槽架(jia)層(ceng)(ceng)通常布(bu)置在火炬管道層(ceng)(ceng)與公用(yong)工(gong)程(cheng)管道層(ceng)(ceng)之(zhi)間。槽架(jia)的(de)附近或正(zheng)下方(fang)不(bu)應布(bu)置有熱(re)影(ying)響的(de)管道。


  ③. 對于(yu)全(quan)廠性管廊,有的(de)項目在電(dian)纜(lan)槽架層設置(zhi)有全(quan)廠性巡檢通道(dao),并每(mei)隔一定距(ju)離設置(zhi)一直爬梯到地面。


工程應用:管廊柱子基(ji)礎與地下(xia)管道、埋(mai)地電纜碰撞(zhuang)


  某(mou)工程在施(shi)工管廊(lang)柱子結構基(ji)礎時(shi)才(cai)發現,柱子基(ji)礎與地(di)下(xia)管道、埋地(di)電纜(lan)等大量(liang)碰撞,只能修改(gai)管廊(lang)柱子位(wei)置或(huo)者(zhe)(zhe)修改(gai)地(di)下(xia)管道位(wei)置或(huo)者(zhe)(zhe)修改(gai)埋地(di)電纜(lan)的(de)位(wei)置,造成(cheng)多個專業的(de)設計(ji)文件大面積修改(gai)。


建議在設計階段進(jin)行管(guan)廊柱子基(ji)礎與地下(xia)管(guan)道、埋地電纜碰(peng)撞檢(jian)查和各專業的會簽。


工程應用:管(guan)廊層高偏高引起(qi)的(de)設計(ji)不合理


  某石化裝置施(shi)工(gong)完后,發現裝置四周的全(quan)廠外(wai)管(guan)(guan)廊(lang)(lang)(lang)高達(da)25m,從遠處觀望,外(wai)管(guan)(guan)廊(lang)(lang)(lang)全(quan)部遮(zhe)擋住(zhu)了裝置內塔及其他設(she)備,如(ru)圖3.9所示。究其原因,發現在(zai)設(she)計時(shi),管(guan)(guan)道間(jian)距沒有按(an)照最小(xiao)管(guan)(guan)間(jian)距設(she)計,共5層管(guan)(guan)廊(lang)(lang)(lang),大(da)口徑管(guan)(guan)道分布在(zai)各個管(guan)(guan)廊(lang)(lang)(lang)層高,每層的層高至少設(she)計成了3m,最大(da)層高設(she)計成了5m。筆者嘗試優化后,這條管(guan)(guan)廊(lang)(lang)(lang)總高度至少降(jiang)低8m。


9.jpg


工程(cheng)應用:管廊柱子(zi)偏粗的(de)不合理設計


  在施工現場,某(mou)裝置(zhi)(zhi)管(guan)廊(lang)(A工程公(gong)司設(she)計(ji)(ji))與鄰(lin)近裝置(zhi)(zhi)管(guan)廊(lang)(B工程公(gong)司設(she)計(ji)(ji))直通連接時(shi),發現管(guan)廊(lang)上的管(guan)子(zi)、電纜槽架是(shi)一樣的,管(guan)廊(lang)層高也一樣,但(dan)是(shi),A工程公(gong)司負(fu)責(ze)設(she)計(ji)(ji)的管(guan)廊(lang)柱子(zi)尺(chi)寸為800mm×800mm,而B工程公(gong)司設(she)計(ji)(ji)的管(guan)廊(lang)柱子(zi)尺(chi)寸僅(jin)有(you)400mm×400mm,差距非常大。


  經核(he)對設計(ji)(ji)(ji)文件,發現A工程公司設計(ji)(ji)(ji)的載荷數據比正常偏(pian)(pian)大了(le)很多,引起了(le)管廊柱(zhu)子偏(pian)(pian)粗的不合理設計(ji)(ji)(ji)。


聯系方式.jpg