以某煉油項目裝置作為一個實例,列出了在已有工(gong)廠(chang)中開展(zhan)新裝置平面布置設(she)(she)計的(de)步驟。通過例子展(zhan)示了某些推薦(jian)的(de)做法(fa)和布置設(she)(she)計的(de)原則。


一、裝置(zhi)設備布(bu)置(zhi)設計要求的一般資料


 當開始做裝置(zhi)(zhi)設(she)備(bei)平面布置(zhi)(zhi)圖時(shi),需(xu)要從(cong)工程設(she)計項目(mu)組及(ji)工藝、設(she)備(bei)、儀表(biao)、電氣、總(zong)圖等專業(ye)得到下列資(zi)料。


  ①. 新裝(zhuang)置區域附近(jin)現場資料(在(zai)某些(xie)(xie)設(she)計單(dan)位,這(zhe)些(xie)(xie)條件(jian)由總圖專(zhuan)業供(gong)給管道(dao)專(zhuan)業)。


   a. 工(gong)程設計(ji)資料(包括新裝置區(qu)域現場平面圖,地上或(huo)地下設施,水、電、汽等(deng)公用工(gong)程條件,選(xuan)用的防火規范、安全(quan)距離(li)、噪聲控制(zhi)的標(biao)準等(deng))。


   b. 常年最小頻率風(feng)向。


   c. 裝置(zhi)(zhi)及進出管線建議的位置(zhi)(zhi)。


   d. 電纜進出口位置。


   e. 新裝置區附近的道路、鐵路等交通條件(jian)及其詳圖。


   f. 裝置的基準(zhun)點(dian)位置。


   g. 裝置的指北向。


   h. 檢修用吊(diao)車(che)的能(neng)力和(he)尺寸(cun)。


   i. 消防(fang)車通道。


 ②. 從其他專業得到的資料。


   a. 工藝流程(cheng)圖(tu)或管道(dao)-儀表(biao)流程(cheng)圖(tu)。


   b. 設(she)備表及設(she)備尺(chi)(chi)寸(cun)。例如:大型儲罐的(de)(de)(de)直徑、高(gao)度或容(rong)量;加熱(re)爐的(de)(de)(de)外形(xing)尺(chi)(chi)寸(cun)、形(xing)式(shi),煙囪是(shi)(shi)獨立的(de)(de)(de)還是(shi)(shi)安(an)裝在加熱(re)爐頂部,煙囪尺(chi)(chi)寸(cun);壓縮機的(de)(de)(de)形(xing)式(shi)、外形(xing)尺(chi)(chi)寸(cun),其密封油、潤滑油系統的(de)(de)(de)布置,輔助設(she)備的(de)(de)(de)布置;泵的(de)(de)(de)形(xing)式(shi)、外形(xing)尺(chi)(chi)寸(cun),驅動機的(de)(de)(de)形(xing)式(shi)和要求;各種(zhong)非定型設(she)備的(de)(de)(de)規格,包括塔(ta)器、換熱(re)器、容(rong)器等。


   c. 設(she)(she)備安裝和(he)檢(jian)修(xiu)要(yao)求。例如:塔(ta)的(de)最(zui)小安裝高(gao)度(du)(從(cong)地(di)面(mian)至(zhi)(zhi)塔(ta)底(di)封(feng)頭(tou)(tou)切線(xian)處);有重力流或固體卸料的(de)立(li)式(shi)或臥式(shi)容器的(de)安裝標高(gao)要(yao)求(立(li)式(shi)的(de)指(zhi)底(di)部封(feng)頭(tou)(tou)切線(xian)處至(zhi)(zhi)地(di)面(mian)的(de)距(ju)離,臥式(shi)的(de)指(zhi)儲槽底(di)部至(zhi)(zhi)地(di)面(mian)的(de)距(ju)離);換(huan)熱器管束抽(chou)芯所需(xu)空間;壓縮機、泵或其他回轉設(she)(she)備拆卸和(he)更換(huan)零部件的(de)要(yao)求。


 ③. 空冷器形(xing)式和(he)外形(xing)尺寸(cun)需要(yao)(yao)和(he)工藝專業協商,因為空冷器通常安(an)裝在管廊的上(shang)方,管廊的尺寸(cun)要(yao)(yao)和(he)空冷器的規格相適應。


  通常(chang)在管(guan)廊的(de)下方布置泵(beng),需要泵(beng)的(de)型號(hao)、規(gui)格、外(wai)形尺寸及泵(beng)的(de)吸入口和排(pai)出口管(guan)線(xian)連接(jie)尺寸,如能提(ti)供樣(yang)本(ben)更好(hao)。



二、對工藝(yi)流程圖的研究


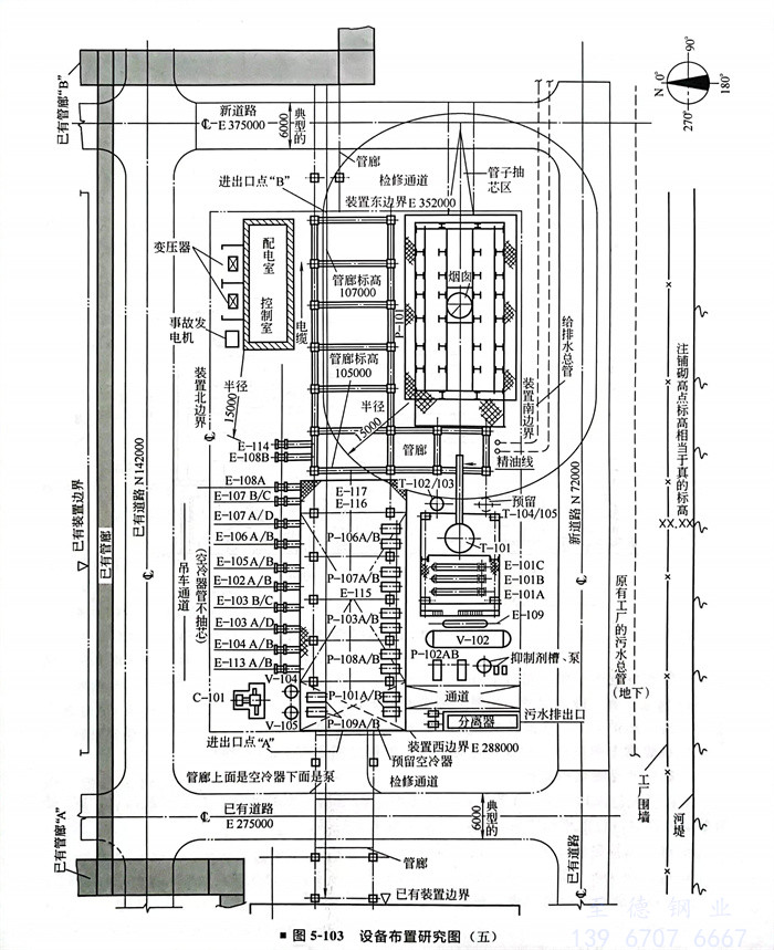
  作平面布(bu)置圖時,工藝流(liu)程圖已準備好(圖5-97)。


97.jpg


  請工(gong)藝設計人員介紹裝置的工(gong)藝流程,并研(yan)究出直接影響設備布(bu)置的若干結論,例如(ru)下面所列內容(rong)。


98.jpg


  ①. 設(she)備(bei)布(bu)置要順(shun)流程。原油加(jia)料泵P-101要緊貼裝(zhuang)置西(xi)邊界管(guan)線(xian)進(jin)出口“A”。因為原油管(guan)線(xian)從(cong)“A”處進(jin)入裝(zhuang)置(圖5-98)。

 

  ②. 泵(beng)應(ying)布置在(zai)相應(ying)的設備附近,以(yi)免(mian)泵(beng)吸入(ru)管(guan)線(xian)壓降(jiang)太大。


  ③. 要(yao)滿(man)足大型設(she)備布(bu)置上的要(yao)求。如加熱爐F-101,要(yao)保證安全距離。另外,燃(ran)料管線用分配(pei)臺分配(pei),進口(kou)接管多,故(gu)爐子周圍要(yao)有足夠(gou)的空間。


  ④. 關鍵管(guan)(guan)線的(de)(de)柔性要(yao)求,在布置階段請(qing)應力分析人員協助(zhu),例(li)如:加熱爐的(de)(de)轉油管(guan)(guan)線是高(gao)溫合金管(guan)(guan)線,要(yao)盡(jin)可(ke)能短(duan),且(qie)沒有袋(dai)形;T-101塔底管(guan)(guan)線是高(gao)溫的(de)(de),要(yao)考慮管(guan)(guan)線的(de)(de)柔性以及備用泵(beng)的(de)(de)熱的(de)(de)和(he)冷的(de)(de)工況;進出(chu)汽(qi)提塔T-102和(he)T-103的(de)(de)管(guan)(guan)線盡(jin)可(ke)能短(duan);汽(qi)提塔至火炬(ju)系統的(de)(de)泄壓管(guan)(guan)線應盡(jin)可(ke)能短(duan)。


  ⑤. 設備(bei)布(bu)置要考(kao)慮(lv)配管(guan)(guan)要求,例如(ru):從T-101至E-115的(de)架空管(guan)(guan)線(xian)應(ying)(ying)避免(mian)有(you)袋(dai)形(xing),在滿足(zu)管(guan)(guan)線(xian)柔(rou)性和塔膨脹(zhang)的(de)前提下,管(guan)(guan)線(xian)走向應(ying)(ying)簡單些;從E-115至V-101的(de)冷(leng)凝液管(guan)(guan)線(xian)應(ying)(ying)避免(mian)有(you)袋(dai)形(xing);從V-101至壓縮機C-101的(de)氣(qi)體管(guan)(guan)線(xian)盡可能短,避免(mian)有(you)袋(dai)形(xing)。



三(san)、平面(mian)布置圖的編制


 在(zai)完成工(gong)藝(yi)流(liu)程圖(tu)的(de)研(yan)究后,進(jin)一步檢查新收到的(de)各專業的(de)資料是否有其他的(de)要求。開始(shi)平(ping)面(mian)布置圖(tu)的(de)設(she)計。


 ①. 如工(gong)程沒(mei)有特(te)殊的(de)要求,裝置的(de)操作通道(dao)、檢(jian)修(xiu)通道(dao)及平臺的(de)設(she)置等均按設(she)計(ji)規(gui)范確定,下列(lie)各(ge)項在(zai)設(she)計(ji)中(zhong)應(ying)予遵循。


   a. 裝置檢修(xiu)時(shi),需汽(qi)車(吊車)通(tong)過的主要檢修(xiu)通(tong)道上(shang)方最小凈(jing)空(kong)4.5m。


   b. 裝置(zhi)四周環形道路上(shang)(shang)方最小凈(jing)空(kong)5.0m,鐵軌上(shang)(shang)方最小凈(jing)空(kong)5.5m(SH 3012-2000)。


   c. 泵(beng)(beng)的(de)操作(zuo)溫(wen)度(du)340℃或340℃以上(shang)時,不能(neng)布(bu)(bu)置(zhi)在管(guan)廊(lang)下(xia),應布(bu)(bu)置(zhi)在距管(guan)廊(lang)外側3m以外。泵(beng)(beng)的(de)操作(zuo)溫(wen)度(du)在340℃以下(xia)時,可布(bu)(bu)置(zhi)在管(guan)廊(lang)下(xia),必須考慮泵(beng)(beng)和驅動(dong)機的(de)檢修,泵(beng)(beng)上(shang)方最小凈空3m。


   d. 通常,空冷器(qi)布置在管廊(lang)上。


   e. 儲(chu)存烴(jing)類設備的支架及輸送烴(jing)類管道的管廊(lang)支柱(zhu)應進行防火(huo)保(bao)護的處理。


 ②. 要(yao)考(kao)慮運輸、安裝設備(bei)的(de)位(wei)置。道路(lu)或通(tong)道要(yao)有足夠的(de)空間,以滿足大型設備(bei)的(de)運輸和安裝。


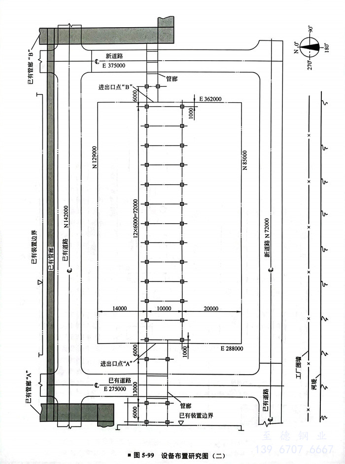
 ③. 進行初步(bu)的(de)設備布(bu)置(zhi)(zhi)。如圖(tu)5-98所示(shi),用方(fang)塊的(de)形式(shi)繪出管(guan)廊、加熱爐、蒸餾(liu)塔、框架、控制室等的(de)位置(zhi)(zhi)。這張(zhang)布(bu)置(zhi)(zhi)圖(tu)討論通過,即可開始設計正式(shi)的(de)平面布(bu)置(zhi)(zhi)圖(tu)。


 ④. 繪制平面布置(zhi)圖的(de)步驟。


   a. 在裝置設備(bei)布(bu)置區(qu)域內確定(ding)管廊的(de)布(bu)置。


   b. 加熱爐(lu)的(de)布(bu)置(zhi)。


   c. 控制室的布(bu)置(zhi)。


   d. 主要設備的(de)布置,包括分餾塔、空冷器、大型容器、壓縮機、泵等。


全部設備布置完成后,經(jing)校驗(yan),并適當調整(zheng),使用(yong)計算機繪出正式平面(mian)布置圖。



四、裝(zhuang)置(zhi)管廊的布置(zhi)


  裝置管廊的位置必(bi)須優先考慮,因(yin)為它會(hui)影響(xiang)設備(bei)的布置。


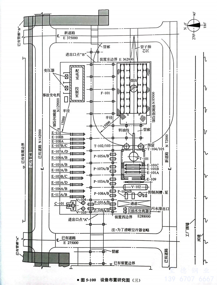
  圖5-99表示了新(xin)裝置管(guan)廊的(de)位置與已有管(guan)廊的(de)關系(xi),下面(mian)敘述如何布置管(guan)廊。


99.jpg


  ①. 首先應與土建協(xie)商確定結構(gou)材料,是使(shi)用鋼(gang)筋(jin)(jin)混凝土的(de)還是鋼(gang)結構(gou)的(de)。鋼(gang)筋(jin)(jin)混凝土的(de)較為經(jing)濟。


  ②. 管(guan)廊的柱(zhu)距(ju)6m,可滿足DN80和(he)DN80以(yi)上的管(guan)線,不需要中間(jian)支承。管(guan)廊下(xia)兩(liang)個柱(zhu)距(ju)之間(jian)可布置兩(liang)臺中型(xing)的泵。


  ③. 管(guan)(guan)廊的寬度,首先(xian)應(ying)明確管(guan)(guan)廊上(shang)是否安裝空(kong)冷(leng)器(qi)(qi)。若(ruo)安裝空(kong)冷(leng)器(qi)(qi),管(guan)(guan)廊的寬度由空(kong)冷(leng)器(qi)(qi)的管(guan)(guan)長(chang)決定。若(ruo)管(guan)(guan)廊上(shang)沒(mei)有空(kong)冷(leng)器(qi)(qi),則作完管(guan)(guan)線走向(xiang)草圖后,根(gen)據管(guan)(guan)子排列寬度,再預留(liu)20%的裕(yu)量(liang)[全廠性管(guan)(guan)廊或管(guan)(guan)墩上(shang)(包括(kuo)穿(chuan)越涵洞)應(ying)留(liu)有10%~30%的裕(yu)量(liang),裝置主管(guan)(guan)廊宜(yi)留(liu)有10%~20%的裕(yu)量(liang)],并考慮管(guan)(guan)廊下設(she)備檢(jian)修的最小(xiao)通道,確定管(guan)(guan)廊的寬度。


  ④. 根(gen)據已有管廊的位置,新裝置管廊東、西向布置較為合理。管廊的柱子邊緣距道路不(bu)應小于1m。


  ⑤. 加熱(re)爐應放在(zai)常年最(zui)小頻(pin)率風(feng)向的(de)下風(feng)側(ce),位于管廊南側(ce)(圖(tu)5-100)。爐子所占面積較(jiao)大,總寬度為10m,其(qi)四周要(yao)設(she)(she)置(zhi)平臺,從裝置(zhi)南邊界線往北20m設(she)(she)管廊第(di)一排柱子。


100.jpg




五(wu)、主要設(she)備的布(bu)置


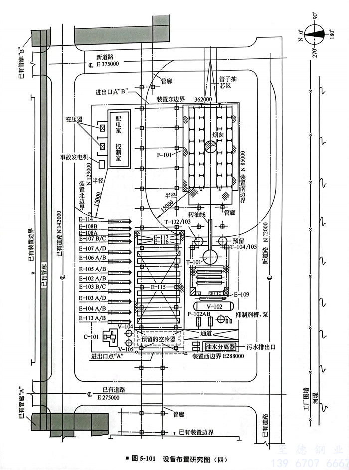
 1. 原(yuan)油加熱爐F-101的布置(圖5-101)


101.jpg

 

  原油加熱爐(lu)(lu)是長23m寬10m的箱式爐(lu)(lu),煙囪和加熱爐(lu)(lu)組裝(zhuang)在一起(qi)。


  加熱(re)爐(lu)布置的要點如下:


   ①. 位于常年最小頻率風向的下風側。


   ②. 加熱爐周圍保(bao)持15m的(de)安全距離。


   ③. 對流段管束抽芯所需要(yao)的空(kong)間(jian),在布置(zhi)圖(tu)上要(yao)表示出,抽芯區域(yu)內不得有任何障(zhang)礙(ai)物。


   ④. 為便于施工(gong)安(an)裝,加熱爐(lu)應位于主要道路旁。


2. 控制室的布置(圖5-101)


  確定控制(zhi)室(shi)(shi)的(de)(de)(de)位(wei)置(zhi)時(shi)應(ying)考慮(lv)安全性,控制(zhi)室(shi)(shi)應(ying)離逸出可燃性氣體(ti)的(de)(de)(de)設備有(you)15m的(de)(de)(de)距離。在有(you)的(de)(de)(de)設計單位(wei),控制(zhi)室(shi)(shi)的(de)(de)(de)布置(zhi)是由總圖專(zhuan)業完(wan)成的(de)(de)(de)。


3. 分(fen)餾塔T-101及有關設備的布置(圖5-101)


  從加熱爐(lu)F-101到塔(ta)T-101的(de)轉油(you)線是(shi)一根(gen)關鍵管線,盡(jin)可能短些(xie),因為(wei)管口是(shi)在爐(lu)子(zi)的(de)西面,所以T-101在F-101的(de)西面是(shi)合理的(de)。


  汽提(ti)塔T-102 和T-103 緊靠T-101。


  如圖5-101所示(shi),應按工藝流程和重力流要(yao)求布置(zhi)設(she)備。從T-101來的塔頂管線(xian)經(jing)換熱器E-101至空冷器E-115,再經(jing)冷凝器E-110到儲槽(cao)V-101。


  在(zai)正式畫平(ping)面(mian)布(bu)置圖以前,先畫一張(zhang)草圖。研究所有設備安裝和檢修是否可行。


4. 空(kong)冷(leng)器的布置


  大(da)型空冷器E-115放在(zai)中間(jian),便于從E-101來的管線(xian)敷設。


  管(guan)線的(de)走向要和流程一致。因為(wei)煤油(you)和輕組分油(you)管(guan)線在(zai)裝(zhuang)置東(dong)邊界進出口點(dian)“B”連接,故空(kong)冷器E-116和E-117放在(zai)E-115的(de)東(dong)邊。


  便于擴建(jian)時(shi)預留(liu)空(kong)冷(leng)器的(de)安裝,預留(liu)的(de)空(kong)冷(leng)器放在E-115的(de)西邊。


5. 脫鹽水V-102及有關設備的布置(圖5-101)


  V-102是一個大型(xing)設備,直徑(jing)3m,切線至切線長度為11m,加上球(qiu)形(xing)封頭總(zong)長為14m。因(yin)為管廊至南(nan)(nan)邊界線的(de)距離是20m,可放(fang)置(zhi)脫鹽器,故(gu)把V-102放(fang)在管廊的(de)南(nan)(nan)邊。


  換熱(re)器E-102、E-103和E-104布(bu)置在管廊的北面(mian),因為原(yuan)油進(jin)料(liao)管線從西(xi)面(mian)進(jin)入后,經換熱(re)器后進(jin)入脫鹽器。


  加(jia)熱爐(lu)加(jia)料泵(beng)P-102旁布置抑(yi)(yi)制劑(ji)配制設備。脫鹽器人口要加(jia)入抑(yi)(yi)制劑(ji),配制設備放在(zai)這里,袋子拆卸(xie)方便。


6. 原(yuan)油(you)預熱(re)器群的布置(圖(tu)5-100和圖(tu)5-101)


  換熱器(qi)E-105、E-106、E-107放在管(guan)廊的北面換熱器(qi)區(qu)域內,和E-102、E-103、E-104排成一行。


  這些換熱器的(de)布置,不能妨礙換熱器周(zhou)圍的(de)檢(jian)修通道(dao),并要提(ti)供足夠的(de)管(guan)束抽(chou)芯空間。在管(guan)廊和換熱器之間要有足夠的(de)距離,以(yi)便(bian)于接近換熱器封頭(tou)。


  完(wan)成換熱器E-108、E-113和E-114的定(ding)位(wei):蒸(zheng)汽發生器E-108布置(zhi)在(zai)E-107的東邊(bian),它靠近(jin)泵P-107及相對地(di)接近(jin)F-101。


  要符合(he)流(liu)程圖(tu)的流(liu)向,水冷(leng)卻器E-113緊靠E-104布置,使(shi)得(de)E-101來的配管距離(li)最短。冷(leng)卻器E-114位于E-108的東邊,在控制室(shi)最小安全距離(li)之外。


7. 壓縮機C-101及附屬(shu)設備的布置(圖(tu)5-100和圖(tu)5-101)


  壓(ya)縮(suo)機為(wei)往復(fu)式(shi)、兩(liang)段、電機驅動的雙缸對置式(shi)壓(ya)縮(suo)機,帶一、二段冷(leng)卻器,一臺(tai),占地面積約5㎡。


  甲方沒有(you)提出建造壓(ya)(ya)縮機廠房(fang)的要求(qiu)時(shi),則壓(ya)(ya)縮機露(lu)天安裝(zhuang)。它和(he)吸(xi)入罐V-104及V-105一起布置在裝(zhuang)置的最西端(duan)。


  因(yin)為(wei)氣體(ti)和二(er)段(duan)冷凝液管線在“A”處進(jin)出裝置(zhi),壓(ya)縮機(ji)C-101布(bu)置(zhi)在裝置(zhi)邊界線附(fu)近是很理想的。


8. 泵的(de)布置(zhi)


  圖5-100示出了管(guan)廊下泵的布置。


  當(dang)管(guan)廊柱(zhu)間(jian)距為6m時,可安裝兩臺(tai)中型泵,并有供電纜的足(zu)夠空間(jian)。泵的排(pai)出口(kou)位(wei)于管(guan)廊柱(zhu)中心線外側600mm(見圖(tu)5-102)。


  原油加料泵P-101位于裝置西邊界(jie)管線進出口附近。


  泵P-103、P-105和P-108靠近有(you)關(guan)設備T-101布置,分餾塔T-101及泵的吸入管線要有(you)一定(ding)的柔性(xing)。


  泵P-104、P-106布置在(zai)框(kuang)架下。


9. 油水分離器的布(bu)置(圖(tu)5-100)


  油水(shui)(shui)(shui)分(fen)(fen)離(li)器是把(ba)烴類和雨水(shui)(shui)(shui)、消(xiao)防水(shui)(shui)(shui)分(fen)(fen)離(li),然(ran)后用泵將烴送至(zhi)廢油罐(在裝置以外)處理,分(fen)(fen)離(li)器排出的污水(shui)(shui)(shui)送至(zhi)全(quan)廠污水(shui)(shui)(shui)處理系統。


  場地西(xi)南角的(de)尺寸和位置布置油水分(fen)離器合適,理由如下(xia):裝置污水管(guan)(guan)要接至工廠已有(you)污水總管(guan)(guan),正好在(zai)油水分(fen)離器的(de)南面;廢油管(guan)(guan)線(xian)理想的(de)引出位置在(zai)“A”點,離加熱爐F-101的(de)距離最(zui)遠。



六、管(guan)線走向研究圖


 平(ping)面布置圖(tu)供給各有關專業(ye)前,根據管(guan)道-儀表流(liu)程圖(tu)畫(hua)管(guan)線走向圖(tu)以校驗(yan)平(ping)面布置圖(tu)。


  ①. 管(guan)線走向圖(tu)的用途有:決(jue)定管(guan)廊(lang)的寬度和(he)層數;校核設備布置和(he)物料流(liu)向。


  ②. 管(guan)線走向(xiang)(xiang)圖(tu)由裝(zhuang)置設(she)備布置設(she)計者負責繪制(zhi)。管(guan)線走向(xiang)(xiang)圖(tu)由一根根管(guan)線組成,管(guan)線走向(xiang)(xiang)盡(jin)可(ke)能使(shi)距離縮短(duan),減少不必要(yao)(yao)的繞(rao)行。通常,管(guan)廊的走向(xiang)(xiang)改變的,要(yao)(yao)改變標高,圖(tu)上(shang)(shang)不必表示管(guan)子的上(shang)(shang)升和下(xia)降。


 管廊上的調(diao)節閥組(zu)、孔(kong)板和主要(yao)管線(xian)中的特殊配件應表示(shi)出位置,以便校(xiao)核(he)所(suo)需要(yao)的空間。


 當管(guan)(guan)線走(zou)向圖(tu)完成后(hou),應校核管(guan)(guan)廊的(de)寬度(du),為今后(hou)的(de)擴建,每一層管(guan)(guan)廊預留(liu)一定的(de)余(yu)量。如果管(guan)(guan)廊的(de)寬度(du)超過(guo)10m,通(tong)常改為雙層管(guan)(guan)廊。


  ③. 管線走向圖應做到如(ru)下各點。


   a. 管廊的寬度(du)一般(ban)不超過(guo)10m。


   b. 只(zhi)有安裝空冷器組(zu)的(de)一段管廊需要雙層的(de)。


   c. 為加熱爐F-101轉油線的(de)支(zhi)承,需設一單層管廊。


   d. 在(zai)管(guan)廊上敷設電氣和儀(yi)表電纜,兩電纜槽之間要有1m的凈距。


   e. 確定管廊橫梁的(de)標高。


   f. 在管(guan)(guan)線進出(chu)口“A”處若為單(dan)(dan)層管(guan)(guan)廊時(shi),需增加(jia)管(guan)(guan)廊的寬(kuan)度,在管(guan)(guan)線進出(chu)口“B”處為單(dan)(dan)層管(guan)(guan)廊時(shi),也需增加(jia)管(guan)(guan)廊的寬(kuan)度(去(qu)火炬干管(guan)(guan)除外)。


   g. 確(que)定從控制(zhi)室來的電纜架的位置。


   h. 確定(ding)冷卻水、循環水在裝置進出口的(de)位置。


   i. 完成(cheng)裝置(zhi)進(jin)出(chu)口(kou)管線表,包(bao)括管線尺寸和流動介質。



七、修(xiu)改并完成建議的平(ping)面布置圖


將建(jian)議的(de)平(ping)面布置圖(tu)修(xiu)改(gai)了,把管(guan)廊北(bei)面的(de)換熱(re)器(qi)(qi)群(qun)南(nan)移,使換熱(re)器(qi)(qi)殼體(ti)的(de)一部分和封頭位于管(guan)廊下(xia),因為附近沒(mei)有泵(beng)。圖(tu)5-103中(zhong)還表示了空冷(leng)器(qi)(qi)管(guan)束抽芯所需的(de)吊車(che)通道。


103.jpg


  為了保證裝(zhuang)(zhuang)置檢修(xiu)時吊(diao)車(che)能吊(diao)裝(zhuang)(zhuang)各種負荷,要(yao)(yao)校核吊(diao)車(che)的(de)荷載能否達(da)到要(yao)(yao)求。


  圖5-102是(shi)(shi)裝置的剖視(shi)圖,這張圖需要與甲方及施工單位結合,它進一步(bu)驗證了通(tong)道等(deng)檢修條(tiao)件是(shi)(shi)否(fou)滿足要求(qiu)。


102.jpg


  圖(tu)5-104為(wei)用坐標(biao)標(biao)注平面(mian)布置圖(tu)的(de)實(shi)例(li):建、構筑(zhu)物的(de)尺(chi)寸(cun)要以坐標(biao)標(biao)注,設備的(de)安裝尺(chi)寸(cun)從(cong)有坐標(biao)的(de)柱號標(biao)注相對尺(chi)寸(cun)。


104.jpg






聯系方式.jpg