浙江至(zhi)德鋼(gang)業有限公司技術(shu)人員參加(jia)評審(shen)某(mou)設計(ji)時,發現某(mou)固定直爬梯沒有設置(zhi)護籠,不符合規范要求。


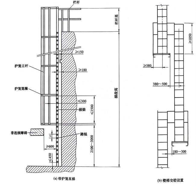
  按照SH/T 3011《石油化工工藝(yi)裝置(zhi)布置(zhi)設計規范》要求:高度超(chao)過3m的直梯應(ying)設置(zhi)安全護籠(long),護籠(long)下端距地面或平臺不應(ying)小于2.1m,護籠(long)上端高出平臺面,應(ying)與(yu)欄桿(gan)高度一致。固定式鋼直梯示意(yi)圖見(jian)圖14.2。


  GB 4053.1《固定式鋼梯(ti)及平臺(tai)安全(quan)要求 第1部(bu)分:鋼直梯(ti)》的要求如下。


   ①. 單(dan)段(duan)梯(ti)高宜(yi)(yi)不大于10m,攀登高度(du)大于10m時宜(yi)(yi)采(cai)用多(duo)段(duan)梯(ti),梯(ti)段(duan)水平交(jiao)錯(cuo)布置,并(bing)設梯(ti)間平臺,平臺的垂直間距宜(yi)(yi)為(wei)6m。單(dan)段(duan)梯(ti)及(ji)多(duo)段(duan)梯(ti)的梯(ti)高均應不大于15m。


  ②. 梯(ti)段(duan)高(gao)(gao)度大于(yu)3m時(shi)(shi)宜設(she)置安(an)全護籠(long)。單梯(ti)段(duan)高(gao)(gao)度大于(yu)7m時(shi)(shi),應(ying)設(she)置安(an)全護籠(long)。當攀登高(gao)(gao)度小于(yu)7m,但梯(ti)子頂(ding)部在地面、地板或(huo)屋頂(ding)之上高(gao)(gao)度大于(yu)7m時(shi)(shi),也(ye)應(ying)設(she)置安(an)全護籠(long)。


  ③. 當護籠用(yong)于多段梯時,每個梯段應與相鄰的(de)(de)梯段水平(ping)交錯并有足(zu)夠的(de)(de)間(jian)(jian)距(ju),設有適當空間(jian)(jian)的(de)(de)安全進、出引導(dao)平(ping)臺,以保護使用(yong)者(zhe)的(de)(de)安全。





聯系方式.jpg