某裝(zhuang)置內主管(guan)廊


  某裝置內主(zhu)(zhu)管(guan)(guan)(guan)廊(lang)側(ce)面圖(tu),管(guan)(guan)(guan)廊(lang)主(zhu)(zhu)體總長203m,寬(kuan)13m,頂層(ceng)標高(gao)(gao)22m,其中管(guan)(guan)(guan)廊(lang)上設備框(kuang)架最高(gao)(gao)處距(ju)地標高(gao)(gao)38m。主(zhu)(zhu)管(guan)(guan)(guan)廊(lang)大(da)約布置了兩(liang)千(qian)多條管(guan)(guan)(guan)線。圖(tu)5-8加粗部分(fen)為(wei)主(zhu)(zhu)管(guan)(guan)(guan)廊(lang)在整個裝置區(qu)內的位置,圖(tu)5-9是一小段(duan)主(zhu)(zhu)管(guan)(guan)(guan)廊(lang)結(jie)構側(ce)面結(jie)構圖(tu)。


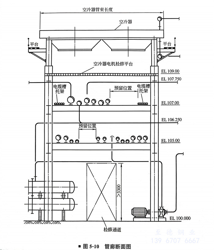
  一些大(da)、中(zhong)型工程項目中(zhong),通常(chang)先根據工藝系統圖(tu)和(he)裝置規劃圖(tu),對(dui)需要(yao)占用管廊(lang)(lang)的管線、儀表電氣槽架和(he)設備進行初(chu)步的布(bu)(bu)置研究(jiu),綜合考慮管廊(lang)(lang)的層數、層高和(he)預(yu)留裕量(liang)等因素,最終確定最小(xiao)管廊(lang)(lang)寬(kuan)(kuan)度(du)(du)(du)。管廊(lang)(lang)橫斷(duan)面(mian)是(shi)兩個(ge)立柱的,寬(kuan)(kuan)度(du)(du)(du)一般不超過10m,如果超過10m,管廊(lang)(lang)橫斷(duan)面(mian)宜采(cai)用三個(ge)立柱,如圖(tu)5-8中(zhong)涂黑(hei)加粗部分的立管廊(lang)(lang)。如果管廊(lang)(lang)上布(bu)(bu)置空冷器,管廊(lang)(lang)寬(kuan)(kuan)度(du)(du)(du)需考慮空冷器管束(shu)長(chang)度(du)(du)(du),具(ju)體要(yao)求見本書空冷器布(bu)(bu)置設計章節詳述。


8.jpg



典(dian)型管廊斷面圖(圖5-10)


10.jpg



大型(xing)(xing)綜(zong)合管廊典型(xing)(xing)布置設(she)計(ji)


  石(shi)化裝置(zhi)(zhi)大型綜合管廊不同于裝置(zhi)(zhi)小管廊,設計技術(shu)難度及工作(zuo)量常常是整個工程裝置(zhi)(zhi)最大的之一。


  有(you)(you)的裝置(zhi)(zhi)內大型綜合管(guan)廊(lang)橫斷面有(you)(you)一百多根管(guan)線,平均(jun)口徑10"左右,管(guan)廊(lang)下面布置(zhi)(zhi)了泵、臥罐(guan)、閥(fa)組、減溫減壓器(qi)(qi)、換熱(re)器(qi)(qi)、分析小屋等設(she)備實(shi)施,管(guan)廊(lang)側面布置(zhi)(zhi)了安全(quan)閥(fa)、消音器(qi)(qi)等設(she)備,管(guan)廊(lang)頂部(bu)布置(zhi)(zhi)了空冷器(qi)(qi)、立式塔、安全(quan)閥(fa)、控制閥(fa)等設(she)備。這種裝置(zhi)(zhi)內大型綜合管(guan)廊(lang)有(you)(you)的設(she)計到(dao)約15m寬、40m高。


  有的(de)(de)煉化(hua)一(yi)體化(hua)裝置外(wai)大型綜合管(guan)廊橫斷面(mian)有200~300根管(guan)線,有的(de)(de)管(guan)廊寬度達(da)50m左右、高度達(da)40m左右。


  大(da)型綜(zong)合管廊的(de)(de)(de)跨距有(you)(you)的(de)(de)(de)用(yong)9m,有(you)(you)的(de)(de)(de)用(yong)12m或18m。有(you)(you)的(de)(de)(de)全用(yong)混凝土的(de)(de)(de),有(you)(you)的(de)(de)(de)全用(yong)鋼(gang)結構的(de)(de)(de),有(you)(you)的(de)(de)(de)第1層用(yong)混凝土,以上(shang)層用(yong)的(de)(de)(de)是(shi)鋼(gang)結構。不(bu)同的(de)(de)(de)跨距、不(bu)同的(de)(de)(de)結構形式對管道設計程(cheng)序和整個工(gong)程(cheng)項(xiang)目的(de)(de)(de)造(zao)價、進(jin)度(du)影(ying)響很大(da),具(ju)體見《工(gong)業管道配管設計與工(gong)程(cheng)應(ying)用(yong)》一書的(de)(de)(de)詳述。




管廊頂部設(she)備布置設(she)計


  管廊頂(ding)部(bu)(bu)常(chang)布(bu)置(zhi)(zhi)空冷(leng)器(qi)、換熱器(qi)、立式(shi)設備、安全(quan)閥等設備。圖5-11是管廊頂(ding)部(bu)(bu)臥式(shi)設備的布(bu)置(zhi)(zhi)示意(yi)圖。有(you)的工(gong)程把約15m高的干燥塔布(bu)置(zhi)(zhi)在了管廊頂(ding)部(bu)(bu)。


11.jpg







聯系方式.jpg